在线询价微信咨询
在线定制
欢迎进入海湾安全技术有限公司官网!
海湾消防设备销售、改造、维修

专业一站式消防解决方案提供商

4006-598-11915262554119
新乡接线安装技术
联系我们Contact us
全国咨询热线15262554119

海湾安全技术有限公司

公司地址:苏州市常熟市黄河路275号

联系电话:4006-598-119

公司邮箱:1334605518@qq.com

接线安装技术

新乡海湾GST-LD-N8402(Ex)电源隔离式安全栅安装参数

作者: 发布时间:2024-11-07 13:51:39点击:2878

信息摘要:

特点

   海湾GST-LD-N8402(Ex)电源隔离式安全栅采用隔离式安全栅设计方案,为本安系统中本安侧设备提 供 DC24V。安全栅应安装在安全区域。安全栅采用隔离式设计,不需要接地。 


主要技术指标  

(1) 工作电压: DC24V;允许范围:DC20VDC28V  

(2) 工电电流:<150mA  

(3) 设备容量:最多可配接 2 GST-HX-MN100C(Ex)火灾声光警报器。 

(4) 本安参数:Um: 250V Uo28V Io115mA Po0.8W Co0.083μF Lo4mH  

(5) 使用环境:温度: -10℃~+55 相对湿度≤95%,不凝露 

(6) 安全栅防护等级:IP30  

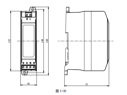
(7) 安全栅外形尺寸:150mm×97mm×36mm


结构特征、安装与布线  

(1) 安全栅的外形示意图如图 1-31 所示。

image.png

安装 

   安全栅可以直接安装于宽度为 35mm 的标准 DIN 导轨,如图 1-32 所示。在不具备导轨安 装条件时,可以通过上下两个安装孔,使用 M4 螺钉或 ST4.2 自攻螺钉(可选配塑料膨胀管) 进行安装,如图 1-33 所示。

image.png

接线 

   安全栅端口通过插拔式端子(包括端子头和端子座)同其他设备连接,将电缆线安装在端 子头上后,端子头正确插在端子座上确定稳固连接即可。


端子说明

接线端子如图 1-34 所示。

image.png

D1、D2:DC24V 电源输入,无极性  

O+、O-:本安电源输出  

注意:安全栅应安装在安全区域,本安侧和非本安侧接线应分开,并保持一定距离(至少为 50mm)。

 

布线要求 电源线 D1、D2 采用耐火 BV 线,截面积≥1.5mm2 。安全栅至本安编码设备应选用截面积≥1.0mm2 的本安电缆,且电缆间分布电容不得大于 0.083μF,分布电感不得大于 4.0mH。


应用方法

  每个电源隔离式安全栅最多可配接 2 只 HX-MN100C(EX)火灾声光警报器,安全栅应用示意图 如图 1-35 所示。

image.png



本文标签:
在线客服
联系方式

热线电话

15262554119

上班时间

周一到周五

公司电话

4006-598-119

二维码
线