在线询价微信咨询
在线定制
欢迎进入海湾安全技术有限公司官网!
海湾消防设备销售、改造、维修

专业一站式消防解决方案提供商

4006-598-11915262554119
新乡接线安装技术
联系我们Contact us
全国咨询热线15262554119

海湾安全技术有限公司

公司地址:苏州市常熟市黄河路275号

联系电话:4006-598-119

公司邮箱:1334605518@qq.com

接线安装技术

新乡海湾GST-LD-8331 型模块箱

作者: 发布时间:2024-11-16 12:56:21点击:2811

信息摘要:

特点  

海湾GST-LD-8331模块箱内部装有 GST-LD-8325 模块和 GST-AS-300 安全栅(以下简称安全栅),可 与 J-SAF-GST9213AEx)消火栓按钮配接,组成本质安全型防爆系统。一旦发生火灾,现场人员 按下消火栓报警按钮,模块将报警信号通过总线传入控制器,控制器会显示出该编码地址的报警信 号。模块箱具有检线功能,当模块出现故障时,控制器会显示出该编码地址的故障信号。模块采用 电子编码方式,可通过我公司生产的 GST-BMQ-2 型电子编码器进行现场编码。模块箱应安装在安全区域。


主要技术指标  

(1) 工作电压:信号总线电压:24V 允许范围:16V28V  电源总线电压:DC24V; 允许范围:DC20VDC28V  

(2) 工作电流: 总线:监视电流≤1mA,报警电流≤1.5mADC24V:监视电流≤10mA,报警电流(不包括有源输出端口的输出电流)≤60mA 

 (3) 有源输出:DC24V/100mA 

(4) 连接设备容量:最多可配接 10 J-SAF-GST9213A(Ex)消火栓按钮 

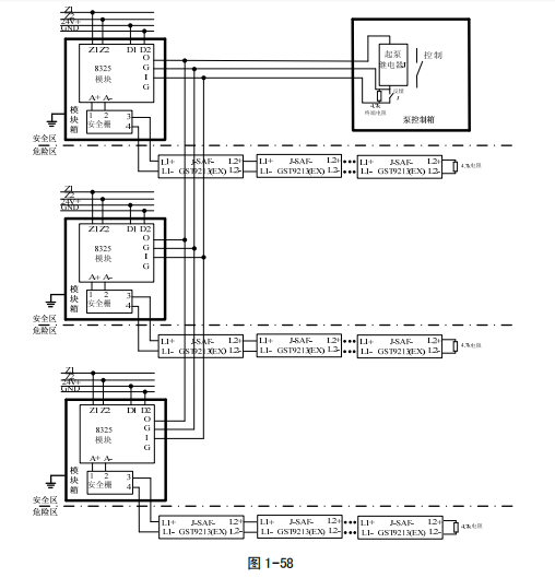
(5) 模块箱并联使用数量:最多 3 GST-LD-8331 模块箱并联使用控制一个设备。 

(6) 安全栅参数:GST-AS-300 型安全栅,U0=28VI0=93mAL04.0mHC00.083

(7) 使用环境: 温度:-10℃~+55相对湿度≤95%,不凝露 

(8) 防护等级:IP66  

(9) 外形尺寸:196mm×215mm×86mm


结构特征、安装与布线  

(1) 模块箱外形示意图如图 1-54:

image.png

(2) 安装方法  模块箱安装可用两只 M6×60 膨胀螺栓将其固定在墙壁上,安装尺寸如图 1-55 所示

image.png

模块箱接线端子如图 1-56 所示。

image.png

其中本安侧端子为安全栅端子,非本安侧端子为模块端子:  Z1、Z2:接控制器总线,无极性  D1、D2:接直流 24V,无极性  I、G:输入 2 端子,无源输入,连接消防泵反馈端  O、G:输出端,有源输出,24V/100mA  3、4:安全栅 3、4 两端,接消火栓报警按钮,3 为正,4 为负模块箱应安装在安全区域,本安 侧和非本安侧接线应分开,并保持一定距离(至少为 50mm)。  模块箱内含 GST-AS-300 型齐纳安全栅,主要技术参数参见 章 5.2 节。

布线要求:信号总线 Z1、Z2 采用耐火 RVS 型双绞线,截面积≥1.0mm2 ;电源线 D1、D2 采用耐 火 BV 线,截面积≥1.5mm2 。安全栅至报警按钮间的电缆应选用截面积≥1.0mm2 的本安电缆,且电缆 间分布电容不得大于 0.083μF,分布电感不得大于 4.0mH。  本安电缆的长度计算参见 GST-LD-8332 中布线要求的相关内容。

应用方法  

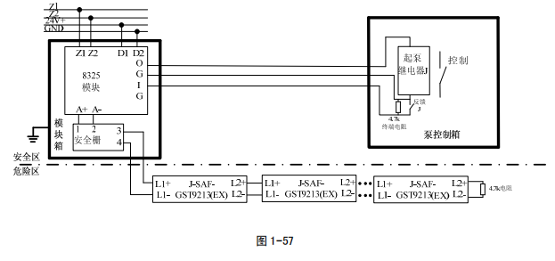
每个模块箱可配接 10 只消火栓按钮,消火栓按钮需串联连接。在消火栓按钮末端和消防泵反 馈端需接 4.7k终端电阻。模块箱应安装在安全区域,本安侧和非本安侧接线应分开并保持一定距 离(至少为 50mm)。外壳(出厂时已经与安全栅接地端子连接)必须就近可靠接地,连接螺钉必须拧 紧,不可松动,接地电阻不能大于 4。  模块箱应用示意图如图 1-57、图 1-58 所示,其中图 1-57 为单个模块箱控制一台消防泵的情 况,图 1-58 为多个模块箱同时控制一台消防泵的情况(模块箱数量不大于 3 台)。输出端和输入 2 端的 2 G 端子内部相连,实际布线只需接其中一个即可。

image.png

image.png

模块箱不能和 J-SAM-GST9124A 消火栓按钮并联使用, J-SAM-GST9124A 消火栓按钮需要单独加 启泵继电器控制。  

模块反馈端不能和其他设备并联,如果需要接入其他设备检测反馈信息,反馈端需单独接线。


本文标签:
在线客服
联系方式

热线电话

15262554119

上班时间

周一到周五

公司电话

4006-598-119

二维码
线