余压监控系统设置要求
二、余压监控系统组成 余压监控系统由余压监控器、余压控制器、余压传感器、泄压阀执行器及管线组成,通过实时监测楼梯间、前室(合用前室)、走道之间的余压值,控制相应设备进行调节,实现相应空间之间的余压值保持在设定值范围内。 系统组成见下表。 ①收集、记录、显示余压控制器、风阀执行器、余压传感器的状态; ②故障信息声光显示报警功能 ①余压监控器与余压控制器之间宜采用RS485或CAN总线通讯协议,总线通讯距离不小于500m; ②余压监控器与余压控制器通信的回路不少于2路; ③每个回路连接的余压控制器不少于32个。 消防控制室 ①余压控制器与余压传感器之间宜为二总线通讯,通讯距离不少于500 m; ②每个余压控制器可连接不少于32个余压传感器。 ①设置于加压风机控制箱内; ②设置于加压送风机控制箱旁专用余压控制箱内。 ①监测前室、楼梯间内的余压; ②将余压值上传给余压控制器; ③显示安装位置地址码信息、余压实时检测值,余压超范围报警及通讯异常报警。 ②精度等级应不低于1.0; ③压差值精度±1 Pa ①根据余压控制器的要求控制泄压阀的开闭动作; ②并将泄压阀开闭状态信号发送给余压控制器的功能。 泄压阀执行器应能受控完成开闭动作,并反馈状态信号 安装于泄压阀上 三、系统示意图 四、系统设备安装 1、余压监控器 2、余压控制器 余压控制器应设置于加压送风机控制箱内,或设置于加压送风机控制箱旁独立的余压控制箱内,并应设置明显标志。 3、余压传感器 ①收集并处理余压传感器的信号; ②控制泄压阀执行器的开闭。 ①余压传感器量程范围应不小于100Pa; 
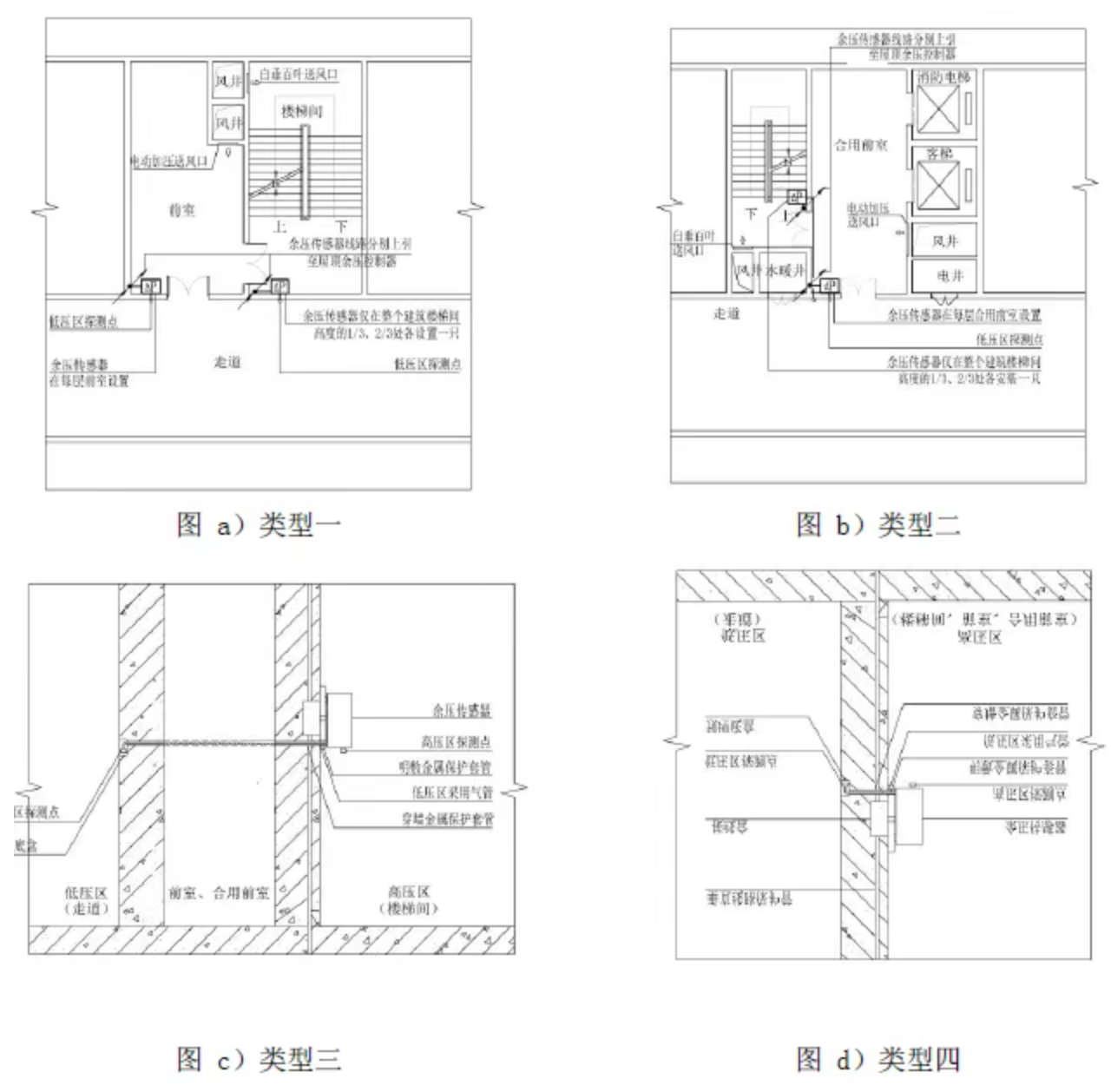
(1) 余压传感器的设置应满足下表要求。
(2)余压传感器安装应满足以下要求:
①余压传感器应安装于高压区,上缘距顶0.1m~0.5m壁挂安装;
②余压传感器低压区的气管座宜安装在预埋86底盒内;
③余压传感器引气管安装于墙面或顶板下0.1m~0.5m,但不应有U型路由;
④引气管明敷时应采用金属管保护,穿墙时应预埋金属套管保护。
(3)余压传感器安装示意如下图所示。

五、系统布线
余压监控系统的线缆的敷设应按火灾自动报警系统的布线要求执行,线缆的选择及敷设应满足以下要求:
1、余压监控器与余压控制器:采用阻燃性能不低于B1级的耐火导线NH-RVSP-2×2.5㎜²;
2、余压控制器与余压传感器:采用阻燃性能不低于B1级的耐火导线NH-RVSP-2×2.5㎜²;
3、余压控制器与泄压执行器:NH-RVV-7×0.75㎜²。


苏公网安备32058102002318号
客服1